Impresie 1 van Jabeekerstraat 0 ong, Schinveld
Impresie 2 van Jabeekerstraat 0 ong, Schinveld
Impresie 3 van Jabeekerstraat 0 ong, Schinveld Verkocht onder voorbehoud

Jabeekerstraat 0 ong

6451 CH Schinveld
€ 340.000,- k.k.
€ 0,-
n.v.t.
Soort object
n.v.t.
Bedrijfsoppervlakte
n.v.t.
Perceeloppervlakte
0
Aantal kamers

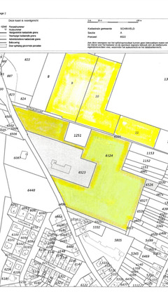
Landbouwgrond in de gemeente Beekdaelen, woonplaats Schinveld aan de Jabeekerstraat gelegen. De totale oppervlakte van deze landbouwgrond bedraagt in totaal 42.460 m2 en bevat de kadastrale gemeente Schinveld, sectienummer A nummer 6524 ter grootte van 22.770 m2, sectie C nummers 9,10 en 11 respectievelijk 3.240m2, 7.920m2 en 8.530m2.
De grond is thans verpacht voor een prijs van € 3.000 per jaar en de pacht eindigt op 31-12-2028.

Voor meer informatie verzoeken wij u om contact op te nemen met OPS advies makelaardij, de heer Jack van Oppen 088-0232340 of via mail jack@ops-advies.nl

Overdracht
  • Status Verkocht onder voorbehoud
  • Vraagprijs € 340.000,- Kosten koper
Bouwvorm
  • Soort object n.v.t.
  • Soort woning n.v.t.
  • Type woning n.v.t.
  • Woning kenmerk n.v.t.
  • Bestemming n.v.t.
  • Soort dak n.v.t.
  • Dak bedekking n.v.t.
  • Bouwjaar 1900
  • Bouwjaar toelichting n.v.t.
  • Bouwvorm Bestaande bouw
  • Ligging n.v.t
Oppervlakte & inhoud
  • Aantal kamers 0
  • Aantal slaapkamers n.v.t.
  • Aantal woonlagen n.v.t.
  • Aantal garages n.v.t.
  • Bedrijfsoppervlakte n.v.t.
  • Gebruiksoppervlakte overige n.v.t.
  • Perceeloppervlakte n.v.t.
  • volume n.v.t.
Energie
  • Energieklasse n.v.t.
  • Energie einddatum n.v.t.
  • Verwarming n.v.t.
  • Warmwater n.v.t.
  • Isolatie n.v.t.
  • C.V-ketel n.v.t.
  • C.V.-ketel bouwjaar n.v.t.
  • Combieketel n.v.t.
  • Brandstof n.v.t.
  • Eigendom n.v.t.
Buitenruimte
  • Perceeloppervlakte n.v.t.
  • Ligging n.v.t
  • Parkeeroptie n.v.t.
  • Parkeerplekken n.v.t.
Tuin
  • Tuin n.v.t.
  • Hoofdtuin n.v.t.
  • Tuin windrichting n.v.t.
  • Oppervlakte n.v.t.
  • Kwaliteit tuin n.v.t.
Berging
  • Berging type n.v.t.
  • Berging voorzieningen n.v.t.
  • Berging isolatie n.v.t.
  • Berging aantal n.v.t.
  • Berging oppervlakte n.v.t.
Garage
  • Garage voorzieningen n.v.t.
  • Garage isolatie n.v.t.
  • Garage aantal n.v.t.
  • Garage oppervlakte n.v.t.
  • Garage lengte n.v.t.
  • Garage breedte n.v.t.
Marketing
  • Publicatiedatum n.v.t.
Open dagen
  • Geen open dagen gepland
Makelaardij

Bekijk hier ons woningaanbod

Alle woningen